― カフェオレ大好きの私がホッと一息つく Cafe Time・・・そんな日々の独り言を綴った日記です ―
(写真作品等はメインサイトの方からお入り下さい)
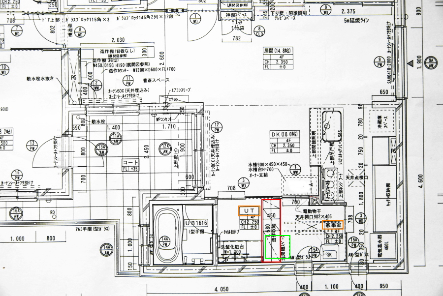
リビングとキッチン部分を飛び越して 今日は家事室の設計図をお見せします。
北海道や北国にお住いの方々は経験上 よーく判っていらっしゃると思いますが
半年近く雪の中で暮らす札幌では お洗濯ものは部屋干しになります。
真冬、外に洗濯物を出せば たとえ晴れていても『凍ります』から (笑)
我が家と道路を挟んで目の前に建てられている大きなマンションのベランダには
たまーに 真冬でも外にお洗濯ものを干されているお宅を見かけますが
『あぁ。。。きっと内地(本州)からの転勤さんだわねぇ』って思います。
以前の家でも お風呂場に通じるユーティリティにお洗濯ものを干していました。
洗面所も兼ねた場所で セントラルヒーティング用の灯油ボイラーと給湯用のボイラー2つがあり、そこに洗濯機も置いていました。
良くあるパターンですよね(*^_^*)
確かにボイラーがあるので暖かくて洗濯物を干すには良い場所だったんですが
洗面台を使う時に 洗濯物が上から下がっているのがどうも気になって・・・
位置的な問題なのでしょうが どうも美しくありませんでした(汗)
っで 今度の家では 思い切って洗面台と家事室を分けることにしました。

お風呂に通じるユーティリティには洗面台のみで 入り口も別です(ダイニング側)
家事室はキッチンの奥から入っていきます。
もう少し大きい画像で・・・・

ユーティリティと家事室の間に造作収納棚を作ってもらい そこに洗濯機を収納します。
この収納棚が私のこだわり部分なんです♪(*^_^*)
展開図はこちら!

右側の図 ユーティリティ側の図を見てください。
緑のラインで囲んだ所がお洗濯物の投入口です。 お風呂に入る時や洗顔時の
洗濯物やタオルを この中に放り込みます♪
中央の図は断面図。左の図は家事室側の図です。
判りますか?(*^_^*)
放り込まれた洗濯物は 家事室の方から取り出せるようになっていて 隣の洗濯機ですぐに洗えます。
引出と書いてあるのは どちら側からも引き出せる箱状のものになっているので
家事室でお洗濯して乾いたバスタオルやフェイスタオルなどを 家事室側で手前から入れておけば
ユーティリティ側の方では押し出された古い?方から順番に使える仕組みになってます。
引出し以外では 家事室・ユーティリティ側で単独で使える棚を組み合わせてあります。
フラッシュと書いてあるのは板張り部分って意味です(*^_^*)
家事室には スロップシンク(SK)を付けてもらい 汚れ物はこちらで♪
そして肝心の洗濯物は 電動昇降物干し(パナソニックの干し姫さま)を付けてもらいます。
実はこの優れものの造作収納は私が考えたんじゃありません。
以前見学に行った○水ハウスのモデルルームが こんな感じの造りになってたんです♪
仕様はちょっと違うけれど 似たようなものをそのまんま作ってもらうことにしました。
この造作収納のお蔭で ユーティリティの洗面所は狭くてもスッキリしています。
洗濯機は見えないし 干してある洗濯物も見えません(笑)
万が一 お客様がお泊りになっても ごちゃごちゃした所で洗面台を使ってもらうこともなくなり 何よりも慌てて洗濯物やこまごましたものを隠さなくても良い(爆)
基本 私は無精者なんで なるべく手を掛けずに綺麗にしておきたいんです(汗)
家事室には まだちょっと仕掛けがしてあるんですが(笑)
それはまた 後日詳しくお話しいたします(^ー^)v
いつも見てくださってありがとうございますm(__)m
ブログ更新の励みにさせて頂いていますので
宜しかったら ポチっとお願いいたします♪
↓

にほんブログ村
北海道や北国にお住いの方々は経験上 よーく判っていらっしゃると思いますが
半年近く雪の中で暮らす札幌では お洗濯ものは部屋干しになります。
真冬、外に洗濯物を出せば たとえ晴れていても『凍ります』から (笑)
我が家と道路を挟んで目の前に建てられている大きなマンションのベランダには
たまーに 真冬でも外にお洗濯ものを干されているお宅を見かけますが
『あぁ。。。きっと内地(本州)からの転勤さんだわねぇ』って思います。
以前の家でも お風呂場に通じるユーティリティにお洗濯ものを干していました。
洗面所も兼ねた場所で セントラルヒーティング用の灯油ボイラーと給湯用のボイラー2つがあり、そこに洗濯機も置いていました。
良くあるパターンですよね(*^_^*)
確かにボイラーがあるので暖かくて洗濯物を干すには良い場所だったんですが
洗面台を使う時に 洗濯物が上から下がっているのがどうも気になって・・・
位置的な問題なのでしょうが どうも美しくありませんでした(汗)
っで 今度の家では 思い切って洗面台と家事室を分けることにしました。
お風呂に通じるユーティリティには洗面台のみで 入り口も別です(ダイニング側)
家事室はキッチンの奥から入っていきます。
もう少し大きい画像で・・・・
ユーティリティと家事室の間に造作収納棚を作ってもらい そこに洗濯機を収納します。
この収納棚が私のこだわり部分なんです♪(*^_^*)
展開図はこちら!
右側の図 ユーティリティ側の図を見てください。
緑のラインで囲んだ所がお洗濯物の投入口です。 お風呂に入る時や洗顔時の
洗濯物やタオルを この中に放り込みます♪
中央の図は断面図。左の図は家事室側の図です。
判りますか?(*^_^*)
放り込まれた洗濯物は 家事室の方から取り出せるようになっていて 隣の洗濯機ですぐに洗えます。
引出と書いてあるのは どちら側からも引き出せる箱状のものになっているので
家事室でお洗濯して乾いたバスタオルやフェイスタオルなどを 家事室側で手前から入れておけば
ユーティリティ側の方では押し出された古い?方から順番に使える仕組みになってます。
引出し以外では 家事室・ユーティリティ側で単独で使える棚を組み合わせてあります。
フラッシュと書いてあるのは板張り部分って意味です(*^_^*)
家事室には スロップシンク(SK)を付けてもらい 汚れ物はこちらで♪
そして肝心の洗濯物は 電動昇降物干し(パナソニックの干し姫さま)を付けてもらいます。
実はこの優れものの造作収納は私が考えたんじゃありません。
以前見学に行った○水ハウスのモデルルームが こんな感じの造りになってたんです♪
仕様はちょっと違うけれど 似たようなものをそのまんま作ってもらうことにしました。
この造作収納のお蔭で ユーティリティの洗面所は狭くてもスッキリしています。
洗濯機は見えないし 干してある洗濯物も見えません(笑)
万が一 お客様がお泊りになっても ごちゃごちゃした所で洗面台を使ってもらうこともなくなり 何よりも慌てて洗濯物やこまごましたものを隠さなくても良い(爆)
基本 私は無精者なんで なるべく手を掛けずに綺麗にしておきたいんです(汗)
家事室には まだちょっと仕掛けがしてあるんですが(笑)
それはまた 後日詳しくお話しいたします(^ー^)v
いつも見てくださってありがとうございますm(__)m
ブログ更新の励みにさせて頂いていますので
宜しかったら ポチっとお願いいたします♪
↓
にほんブログ村
PR
アクセス数
Profile
HN:
Nonnko
年齢:
68
性別:
女性
誕生日:
1957/08/17
趣味:
写真・ゴルフ・海水水槽
自己紹介:
札幌在住で写真を趣味にしている主婦です。
趣味が高じて たまにお仕事をさせてもらっています。
こちらのブログでは写真以外のことを主としてUPしています。
よろしくお願いします♪
趣味が高じて たまにお仕事をさせてもらっています。
こちらのブログでは写真以外のことを主としてUPしています。
よろしくお願いします♪
カレンダー
| 12 | 2026/01 | 02 |
| S | M | T | W | T | F | S |
|---|---|---|---|---|---|---|
| 1 | 2 | 3 | ||||
| 4 | 5 | 6 | 7 | 8 | 9 | 10 |
| 11 | 12 | 13 | 14 | 15 | 16 | 17 |
| 18 | 19 | 20 | 21 | 22 | 23 | 24 |
| 25 | 26 | 27 | 28 | 29 | 30 | 31 |
カテゴリー
最新記事
最新コメント
[09/10 Nonnko]
[09/10 Nonnko]
[09/10 たらふく]
[09/10 パインテール]
[09/07 Nonnko]
[08/27 Nonnko]
[08/26 たらふく]
[08/22 たらふく]
[08/13 Nonnko]
[08/12 とい]
海水魚関係LINK
ブログ内検索