― カフェオレ大好きの私がホッと一息つく Cafe Time・・・そんな日々の独り言を綴った日記です ―
(写真作品等はメインサイトの方からお入り下さい)
昨日今日と青空が出て 降った雪の白に映えて綺麗な札幌です。
絵的には綺麗でも 寒さや除雪など生活面では色々ありますが・・・(苦笑)
さて 今日は和室を紹介いたします。

和室はリビングに隣接していて 引き戸3枚で仕切られています。


畳 セキスイ畳表 美草 目積―アイボリー 縁なし
板畳 床のロイヤルストーンのアクセントで使っている茶色のもの PST229
襖紙 リリカラ kioi シリーズ 7026 (これに関しては後程ご紹介ます)

板敷き部分を 最初は一般的な日本間仕様の板で廻すことになっていましたが
このロイヤルストーンの美しいこげ茶の模様を使いたくて あえてこれにしました。
出来上がりは とても素敵で 日本間というよりもジャパニーズルーム♪って感じに!!
一枚板を使うよりも お値段的にもリーズナブル♪
琉球畳を交互にずらして置くことで 畳目の光が変わり 上品な市松模様が浮き出ています。

吊り押入れの下には間接照明を入れて頂いております(単なる蛍光灯ですけど)
そして 左側の3枚の引き戸の奥には 収納場を作りました。

左側には 私の和ダンスを置き、着物を着る時には畳の上で着れるように♪
って ほとんど着る事は無いと思いますが・・・・(^◇^;)
そして その横には造り付けの棚を奥の方まで作って頂き、お義母さんのお花の花器や
色んな収納品を納める事が出来るたっぷり2畳分の収納を作りました。

吊り押入れには 襖紙は使わずに私が惚れ込んだ壁紙を貼って頂きました♪

写真では判りづらいですが・・・・・(汗)
リリカラのメーカーが今年から出している『kioi (キオイ)シリーズ』の壁紙です。
kioi (キオイ)シリーズとは
江戸時代から作られている小紋や友禅の染色に使う型に伊勢型紙というものがあります。
彫刻で彫り上げられるその型紙自体も美しいのですが
日本橋の染物屋さんが所有されている5000枚にも及ぶその伊勢型紙のデザインの
意匠をクロスやカーテンとして発表したものなのです。
色んな柄・色などが出ていますが その中から我が家の日本間に選んだのが
この壁紙でした。
サンプルで見た時よりも 実際に貼った時の感動は\(^o^)/!!!
これを選んで良かった!!って思います♪
実際に作って下さった工事の方々にも とても好評を頂きました♪

内窓は刷りガラスとし、障子風に見えるように桟を入れて頂きましたので
カーテン等は付けていません。

照明は 東芝のLED照明です。 四角いものを選んでフラットに天井付けにしています。
目だたないようでいて存在感が適度にあって 気に入っています(*^_^*)
照明を付けると 柔らかく暖かい色の光の中で kioiの襖と畳とアクセントの板の間が
上品に調和したとても素敵な日本間になったと自画自賛です(笑)
リビングからの引き戸を開けていても『いかにも日本間』というのではなくて
とてもモダンでお洒落な空間を作ることが出来ました(*^_^*)
ってことで プライベートルームの各部屋は 今日で終わりになります♪
お付き合いくださりありがとうございました!
次回は 何処に行こうかなぁ?(笑)

にほんブログ村
絵的には綺麗でも 寒さや除雪など生活面では色々ありますが・・・(苦笑)
さて 今日は和室を紹介いたします。
和室はリビングに隣接していて 引き戸3枚で仕切られています。
畳 セキスイ畳表 美草 目積―アイボリー 縁なし
板畳 床のロイヤルストーンのアクセントで使っている茶色のもの PST229
襖紙 リリカラ kioi シリーズ 7026 (これに関しては後程ご紹介ます)
板敷き部分を 最初は一般的な日本間仕様の板で廻すことになっていましたが
このロイヤルストーンの美しいこげ茶の模様を使いたくて あえてこれにしました。
出来上がりは とても素敵で 日本間というよりもジャパニーズルーム♪って感じに!!
一枚板を使うよりも お値段的にもリーズナブル♪
琉球畳を交互にずらして置くことで 畳目の光が変わり 上品な市松模様が浮き出ています。
吊り押入れの下には間接照明を入れて頂いております(単なる蛍光灯ですけど)
そして 左側の3枚の引き戸の奥には 収納場を作りました。
左側には 私の和ダンスを置き、着物を着る時には畳の上で着れるように♪
って ほとんど着る事は無いと思いますが・・・・(^◇^;)
そして その横には造り付けの棚を奥の方まで作って頂き、お義母さんのお花の花器や
色んな収納品を納める事が出来るたっぷり2畳分の収納を作りました。
吊り押入れには 襖紙は使わずに私が惚れ込んだ壁紙を貼って頂きました♪
写真では判りづらいですが・・・・・(汗)
リリカラのメーカーが今年から出している『kioi (キオイ)シリーズ』の壁紙です。
kioi (キオイ)シリーズとは
江戸時代から作られている小紋や友禅の染色に使う型に伊勢型紙というものがあります。
彫刻で彫り上げられるその型紙自体も美しいのですが
日本橋の染物屋さんが所有されている5000枚にも及ぶその伊勢型紙のデザインの
意匠をクロスやカーテンとして発表したものなのです。
色んな柄・色などが出ていますが その中から我が家の日本間に選んだのが
この壁紙でした。
サンプルで見た時よりも 実際に貼った時の感動は\(^o^)/!!!
これを選んで良かった!!って思います♪
実際に作って下さった工事の方々にも とても好評を頂きました♪
内窓は刷りガラスとし、障子風に見えるように桟を入れて頂きましたので
カーテン等は付けていません。
照明は 東芝のLED照明です。 四角いものを選んでフラットに天井付けにしています。
目だたないようでいて存在感が適度にあって 気に入っています(*^_^*)
照明を付けると 柔らかく暖かい色の光の中で kioiの襖と畳とアクセントの板の間が
上品に調和したとても素敵な日本間になったと自画自賛です(笑)
リビングからの引き戸を開けていても『いかにも日本間』というのではなくて
とてもモダンでお洒落な空間を作ることが出来ました(*^_^*)
ってことで プライベートルームの各部屋は 今日で終わりになります♪
お付き合いくださりありがとうございました!
次回は 何処に行こうかなぁ?(笑)
にほんブログ村
PR
引き続いて荷物が入る前の各部屋その2です。
残ってるのは お義母さんのお部屋とゲストルームとリビング続きの日本間。
今日はお義母さんのお部屋とゲストルームにご案内いたします。

まずはお義母さんのお部屋。
この部屋はプライベートルームの中で一番広くしました。
と言っても 住空間は8畳ちょっとなんですが・・・(汗)
構造上必要なコンクリート壁があるので それを生かしてクローゼットを大小2つ作りました。
下の写真は入口の引き戸の場所から撮影しています。

↓ これは部屋の内部から廊下に向かって・・・・ むこうに見えるのはゲストルームです。

お義母さんのリクエストは『白い壁は汚れるから嫌』(笑)とのことだったので
茶系でまとめて ベッドの頭部分の壁だけアクセントクロス仕立てにしました。
いつもベッドの周りに色んな物を置く人なので 壁に小さな棚を2つつけてもらい、
そこに ティッシュボックスやらお薬やらラジオやら その他諸々の物を・・・

窓は東側に一つと 小さいけれど中庭コート部分が見えるようにもう一つあります。
コート部分が見える窓は ちょうどダイニングの掃出し窓と対面状態になっているので
何か気にかかる事がある時には お互い注意して見ていられるんじゃないかなって思います。
この窓の下に机を置き、他の壁には収納用の家具が並びます。
そして 居間で使っていたTVを置いて日中でもゆっくり出来るようにと思っています。
ウォークインクローゼットの中はこんな感じ。

入って左側は2段のハンガーにしてもらい 後はズラッと1段ハンガーです。
もう一つのクローゼットも含めて かなりの収納力があると思いますが
きっとこれでもお義母さんの荷物は入りきらないんだろうな・・・(-"-;)
(案の定 引っ越し後は捨てきれない雑多な物でこの広い部屋は埋め尽くされた!)
まぁ ご自分の部屋をどう使おうと構わないので 好きにやって下さいなって感じです(汗)
さて 次はゲストルームに行きましょう♪
といっても ここは本当にシンプルな部屋で何のひねりもありません(汗)

(照明器具の邪魔な紐がブラブラしてますが スルーしてください)(苦笑)

狭いでしょ(汗)
ここには 旦那様が単身赴任中に使っていたダブルベッドと ちょっとした机を置くだけです。
部屋にあるウォークインクローゼットの中は 私が個展で制作した大量の写真の額装が
眠る場所になっています(笑)
普段は使うことが無い部屋ですが いざという時にはこういう部屋が一つあると
何かと助かります(*^_^*)
今日はこの辺で~~~♪

にほんブログ村
残ってるのは お義母さんのお部屋とゲストルームとリビング続きの日本間。
今日はお義母さんのお部屋とゲストルームにご案内いたします。
まずはお義母さんのお部屋。
この部屋はプライベートルームの中で一番広くしました。
と言っても 住空間は8畳ちょっとなんですが・・・(汗)
構造上必要なコンクリート壁があるので それを生かしてクローゼットを大小2つ作りました。
下の写真は入口の引き戸の場所から撮影しています。
↓ これは部屋の内部から廊下に向かって・・・・ むこうに見えるのはゲストルームです。
お義母さんのリクエストは『白い壁は汚れるから嫌』(笑)とのことだったので
茶系でまとめて ベッドの頭部分の壁だけアクセントクロス仕立てにしました。
いつもベッドの周りに色んな物を置く人なので 壁に小さな棚を2つつけてもらい、
そこに ティッシュボックスやらお薬やらラジオやら その他諸々の物を・・・
窓は東側に一つと 小さいけれど中庭コート部分が見えるようにもう一つあります。
コート部分が見える窓は ちょうどダイニングの掃出し窓と対面状態になっているので
何か気にかかる事がある時には お互い注意して見ていられるんじゃないかなって思います。
この窓の下に机を置き、他の壁には収納用の家具が並びます。
そして 居間で使っていたTVを置いて日中でもゆっくり出来るようにと思っています。
ウォークインクローゼットの中はこんな感じ。
入って左側は2段のハンガーにしてもらい 後はズラッと1段ハンガーです。
もう一つのクローゼットも含めて かなりの収納力があると思いますが
きっとこれでもお義母さんの荷物は入りきらないんだろうな・・・(-"-;)
(案の定 引っ越し後は捨てきれない雑多な物でこの広い部屋は埋め尽くされた!)
まぁ ご自分の部屋をどう使おうと構わないので 好きにやって下さいなって感じです(汗)
さて 次はゲストルームに行きましょう♪
といっても ここは本当にシンプルな部屋で何のひねりもありません(汗)
(照明器具の邪魔な紐がブラブラしてますが スルーしてください)(苦笑)
狭いでしょ(汗)
ここには 旦那様が単身赴任中に使っていたダブルベッドと ちょっとした机を置くだけです。
部屋にあるウォークインクローゼットの中は 私が個展で制作した大量の写真の額装が
眠る場所になっています(笑)
普段は使うことが無い部屋ですが いざという時にはこういう部屋が一つあると
何かと助かります(*^_^*)
今日はこの辺で~~~♪
にほんブログ村
今日は青空が広がる冬の日となった札幌でした。
昨日の大荒れの天気で 太平洋側の室蘭やその他の地域では
大規模な停電になって大変なことになっています。
冬に電気が使えないと寒い北海道では本当に困ります。
寒い思いをなさっていらっしゃる方々の地方で 一時でも早く復旧しますように!
我が家と我が家の賃貸マンションはオール電化です。
共用部分には太陽光発電からの電気が行くので日中は消える事はないと思いますが
暖房まではまなかっていません。
今回の停電の事で ちょこっとだけオール電化にしたことを考えさせられました(汗)
でも・・・ そういう大惨事になる事は 本当に稀なことと思うのですが
非常用のものを揃えておくことも考えねばなりませんね。
さて♪
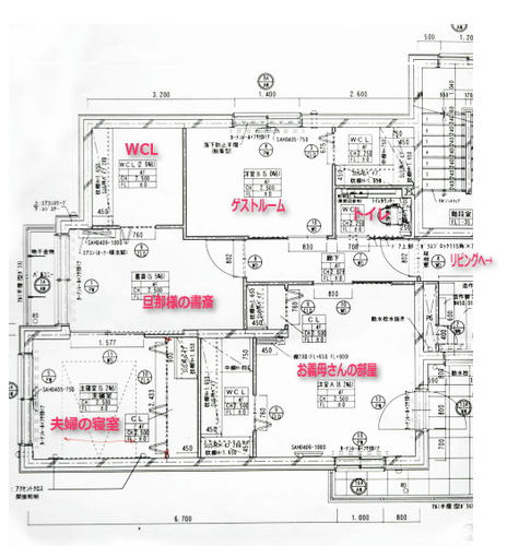
今日は 各部屋の入居前Web内覧会①ということで 設計図を見てください。

建物の一番左側に 旦那様が主に使う書斎とその奥に夫婦の寝室を作りました。
この場所は南西向きの一番日が当たる場所になっています。
でも 土地の形が こちらの方が狭くて こちら側にパブリックスベースを持ってくることが出来ませんでした。
なので 逆転の発想で 広い北東にリビング・ダイニングなどを持っていき、
中庭(コート)を作って光を入れるという考え方をしたのでした。
っで この書斎部分の窓は掃出し窓の大きなものにし、廊下を開けると
光と風がリビングに向かって行くという構想です(*^_^*)
廊下部分は 私の歩数で7歩程度と短い(狭い)のですよ(笑)
書斎からリビングに続く廊下です。


各部屋はディープウォールナットのフローリング仕上げですが
リビング・ダイニングと廊下部分等は 東リのロイヤルストーンを貼って頂きました。
大理石調(あくまでも調です)の床材で 白っぽいのはPST210
アクセントでラインとして使ってるこげ茶のは PST229です。
この組み合わせ とても綺麗なんです(*^_^*)

上の写真は 寝室の方から見た書斎です。 ここ・・・狭いんです(汗)
旦那様には申し訳ないけれど これしか取れませんでした<(_ _)>
そして引き戸で仕切れるようになっている主寝室です。

ここも実は狭いです(汗) デラックスダブルベッドを使っている私達のベッドヘッドが
ちょうど煉瓦状の壁紙と同じくらいなんです。
ここはベッドとベッドサイドの小さなテーブルしか置かないつもりです。
ってか。。。 それしか置けません(^◇^;)
っで それだけじゃつまらないので アクセントウォールでデコレーションしたわけです。
こんな感じ♪ 照明にはコントルクスを付けて頂き、調光出来るようになっています。

昨日の大荒れの天気で 太平洋側の室蘭やその他の地域では
大規模な停電になって大変なことになっています。
冬に電気が使えないと寒い北海道では本当に困ります。
寒い思いをなさっていらっしゃる方々の地方で 一時でも早く復旧しますように!
我が家と我が家の賃貸マンションはオール電化です。
共用部分には太陽光発電からの電気が行くので日中は消える事はないと思いますが
暖房まではまなかっていません。
今回の停電の事で ちょこっとだけオール電化にしたことを考えさせられました(汗)
でも・・・ そういう大惨事になる事は 本当に稀なことと思うのですが
非常用のものを揃えておくことも考えねばなりませんね。
さて♪
今日は 各部屋の入居前Web内覧会①ということで 設計図を見てください。
建物の一番左側に 旦那様が主に使う書斎とその奥に夫婦の寝室を作りました。
この場所は南西向きの一番日が当たる場所になっています。
でも 土地の形が こちらの方が狭くて こちら側にパブリックスベースを持ってくることが出来ませんでした。
なので 逆転の発想で 広い北東にリビング・ダイニングなどを持っていき、
中庭(コート)を作って光を入れるという考え方をしたのでした。
っで この書斎部分の窓は掃出し窓の大きなものにし、廊下を開けると
光と風がリビングに向かって行くという構想です(*^_^*)
廊下部分は 私の歩数で7歩程度と短い(狭い)のですよ(笑)
書斎からリビングに続く廊下です。
各部屋はディープウォールナットのフローリング仕上げですが
リビング・ダイニングと廊下部分等は 東リのロイヤルストーンを貼って頂きました。
大理石調(あくまでも調です)の床材で 白っぽいのはPST210
アクセントでラインとして使ってるこげ茶のは PST229です。
この組み合わせ とても綺麗なんです(*^_^*)
上の写真は 寝室の方から見た書斎です。 ここ・・・狭いんです(汗)
旦那様には申し訳ないけれど これしか取れませんでした<(_ _)>
そして引き戸で仕切れるようになっている主寝室です。
ここも実は狭いです(汗) デラックスダブルベッドを使っている私達のベッドヘッドが
ちょうど煉瓦状の壁紙と同じくらいなんです。
ここはベッドとベッドサイドの小さなテーブルしか置かないつもりです。
ってか。。。 それしか置けません(^◇^;)
っで それだけじゃつまらないので アクセントウォールでデコレーションしたわけです。
こんな感じ♪ 照明にはコントルクスを付けて頂き、調光出来るようになっています。
2種類の壁紙を使い、その間に見切りの金具を入れてもらっています。
ライトは四角いものを2対ずつつけてもらいました。
その横のは普段使いの洋服を入れておくタンスや棚をを仕舞えるクローゼットがあります。


夜はこんな感じになります。


クローゼットの中にも照明を入れてもらいました。
勿論 書斎につけてあるウォークインクローゼットの中も照明があり、そこはかなり広いスペースを取りました。
なるべく物を外に出さないという事にし 仕舞ってしまえばスッキリ!を目指しています。

ベランダを付けた掃出し窓です。お布団も干せるように物干しをつけてあります。
今日は 長くなったのでこの辺で・・・・<(_ _)>

にほんブログ村
ライトは四角いものを2対ずつつけてもらいました。
その横のは普段使いの洋服を入れておくタンスや棚をを仕舞えるクローゼットがあります。
夜はこんな感じになります。
クローゼットの中にも照明を入れてもらいました。
勿論 書斎につけてあるウォークインクローゼットの中も照明があり、そこはかなり広いスペースを取りました。
なるべく物を外に出さないという事にし 仕舞ってしまえばスッキリ!を目指しています。
ベランダを付けた掃出し窓です。お布団も干せるように物干しをつけてあります。
今日は 長くなったのでこの辺で・・・・<(_ _)>
にほんブログ村
おはようございます♪
今日の札幌は朝から雪です。 天気予報では毎日雪マーク・・・
根雪になっちゃうのかな?
それでは2回目の入居前Web内覧会を書かせていただきますね♪。
リビングダイニングは 入居前にちょこちょこお見せしていましたので
今日は トイレから・・・・・(*^_^*)
リビングの右側の廊下の扉を開けると すぐにトイレがあります。
左側の机と飾り棚は 以前お見せした私のPC作業場です。

トイレだけ白い引き戸になっています。 他の部屋の扉は全てディープウォルナットなので
間違える事はありません(笑)

引き戸の上の方にはガラスブロックを3つ入れて頂きました。
工事中に見せて頂いた時、 このガラスブロックの枠の色が間違ってダークウォルナットになってました(汗)
リビングのガラスブロックの枠と
同じにして下さったようなのですが
ここは 白い色にやり直して頂いたのでした
(*^_^*)
中はこんな感じです♪

フラッシュを炊いて撮ったので 影が出来ちゃってますが・・・・(汗)
<トイレ> パナソニック アラウーノV ホワイト(ウォッシュレット一体型)
<カウンター手洗い> パナソニック トイレカウンターTS 2連巻きホルダー付き
ホワイト
照明は 悩んで悩んで・・・・ でも色んな新築ブロガー様の記事を参考にさせて頂き、
照明器具を見せるのではなく 『光』で魅せたいと思い、こんな風に作ってもらいました。

木材をコの字型に壁から立ち上げ その中に蛍光灯を付けてもらっただけ (笑)
木材を隠すために タイル柄の壁紙を貼ってもらっています。
このタイル柄の壁紙は 家事室にも使っている水をはじくものです。
トイレに座った時に 目に直接光が入らない高さを調べて(自分で座って確かめて高さを決めたの)
設置してもらったのですが 想った以上に素敵に出来て自己満足ですが大成功だと思います♪
お値段の高い照明器具を付けるよりも お金は掛かってないです(*^m^*)ぷっ♪

廊下照明が人感センサーなので 少し赤っぽい色になっていますが
トイレは 壁は淡いグリーン。床もフレッシュグリーンで爽やかな色合いです。
そこにフワッと光が広がります♪
(トイレに入ると勝手に蓋があいちゃうので お見苦しいですがすみません)
トイレの電気が付いていると ガラスブロックから光が漏れますので
誰か入っているとすぐに判ります。
電気の消し忘れも判ります(*^_^*)
入居後 このトイレの壁に ひと工夫したんですが それはまた後日に♪
以上 トイレのお話でした(*^_^*)

にほんブログ村
今日の札幌は朝から雪です。 天気予報では毎日雪マーク・・・
根雪になっちゃうのかな?
それでは2回目の入居前Web内覧会を書かせていただきますね♪。
リビングダイニングは 入居前にちょこちょこお見せしていましたので
今日は トイレから・・・・・(*^_^*)
リビングの右側の廊下の扉を開けると すぐにトイレがあります。
左側の机と飾り棚は 以前お見せした私のPC作業場です。
トイレだけ白い引き戸になっています。 他の部屋の扉は全てディープウォルナットなので
間違える事はありません(笑)
引き戸の上の方にはガラスブロックを3つ入れて頂きました。
工事中に見せて頂いた時、 このガラスブロックの枠の色が間違ってダークウォルナットになってました(汗)
リビングのガラスブロックの枠と
同じにして下さったようなのですが
ここは 白い色にやり直して頂いたのでした
(*^_^*)
中はこんな感じです♪
フラッシュを炊いて撮ったので 影が出来ちゃってますが・・・・(汗)
<トイレ> パナソニック アラウーノV ホワイト(ウォッシュレット一体型)
<カウンター手洗い> パナソニック トイレカウンターTS 2連巻きホルダー付き
ホワイト
照明は 悩んで悩んで・・・・ でも色んな新築ブロガー様の記事を参考にさせて頂き、
照明器具を見せるのではなく 『光』で魅せたいと思い、こんな風に作ってもらいました。
木材をコの字型に壁から立ち上げ その中に蛍光灯を付けてもらっただけ (笑)
木材を隠すために タイル柄の壁紙を貼ってもらっています。
このタイル柄の壁紙は 家事室にも使っている水をはじくものです。
トイレに座った時に 目に直接光が入らない高さを調べて(自分で座って確かめて高さを決めたの)
設置してもらったのですが 想った以上に素敵に出来て自己満足ですが大成功だと思います♪
お値段の高い照明器具を付けるよりも お金は掛かってないです(*^m^*)ぷっ♪
廊下照明が人感センサーなので 少し赤っぽい色になっていますが
トイレは 壁は淡いグリーン。床もフレッシュグリーンで爽やかな色合いです。
そこにフワッと光が広がります♪
(トイレに入ると勝手に蓋があいちゃうので お見苦しいですがすみません)
トイレの電気が付いていると ガラスブロックから光が漏れますので
誰か入っているとすぐに判ります。
電気の消し忘れも判ります(*^_^*)
入居後 このトイレの壁に ひと工夫したんですが それはまた後日に♪
以上 トイレのお話でした(*^_^*)
にほんブログ村
すっかりご無沙汰していました。
16日に引っ越しが始まり、怒涛のごとくに忙しくって バテバテの管理人です。
我が家の引っ越しもそうですが 賃貸部分の住人さんも引っ越しがあり
色んな説明などに走り回ったりと 普通の引っ越しよりもハードな我が家です。
引っ越しから10日あまり・・・ 何とか落ち着いてきたので
今日からブログを再開させていただき 家具なしWeb内覧会を始めたいと思います♪
まずはぁ 外観の写真から!!
数日前から札幌でも雪が降ったので 今朝撮影した時には 道路は凍ってました。

マンションなので 形的には面白くはない形です(笑)
向かって右側の赤いボルボが止まってる所が 我が家の専用玄関です。
屋上に太陽光パネルが見えますが これはマンションの共用部分用で
商業用のリース契約をして付けていただきました。
発電して余った電力は 北電さんに買って頂くシステムになっています。
正面からはこんな感じ♪ 夕方からは人感センサーで照明が付くようになっています。

玄関扉はこれです。
三協立川アルミ ラフォース ブロディ― デザイン P17(欄間なし)
カラー シャンパングレイ

玄関の鍵は電気錠になっています。 (後日に紹介します)
そして 以前にもご紹介したアイアン表札を付けて頂きました♪

照明が付くと 影が出来てとってもかっこよくなります♪
道路の方を振り返るとこんな感じです(*^_^*)
愛車は洗っていないので 汚いことには目をつぶってください (苦笑)

さて♪
玄関の扉を開けると 狭いんだけどエレベーターに続くエントランスがあります。
ここには 大きな写真や額などを飾れるように 間接照明を入れてもらった飾り壁を作りました。

右の方にはホームエレベーターがあります。
パナソニック製 1414ミディモダンE エクセルダーク柄
(写真では ちょっと赤っぽく写っちゃってます)

どうぞ♪ お入りください♪(*^_^*)

直通で 4Fまで上がって扉が開くと そこは我が家の玄関です。

上がり框は 曲線を描いて作ってもらいました。

左手には ウォークインシューズクローゼットがあり、 そこから家族は上がるようにします。

むこう側の壁には鏡を付けてもらって 狭いところに広がり感を出してます。
(撮影してる私が写ってますが 無視してください)(爆)

玄関もウォークインシューズクローットも人感センサーになっています。
ウォークインシューズクローゼットは 別の機会にご紹介しますね。
今日は長くなったので これくらいで・・・・

にほんブログ村
16日に引っ越しが始まり、怒涛のごとくに忙しくって バテバテの管理人です。
我が家の引っ越しもそうですが 賃貸部分の住人さんも引っ越しがあり
色んな説明などに走り回ったりと 普通の引っ越しよりもハードな我が家です。
引っ越しから10日あまり・・・ 何とか落ち着いてきたので
今日からブログを再開させていただき 家具なしWeb内覧会を始めたいと思います♪
まずはぁ 外観の写真から!!
数日前から札幌でも雪が降ったので 今朝撮影した時には 道路は凍ってました。
マンションなので 形的には面白くはない形です(笑)
向かって右側の赤いボルボが止まってる所が 我が家の専用玄関です。
屋上に太陽光パネルが見えますが これはマンションの共用部分用で
商業用のリース契約をして付けていただきました。
発電して余った電力は 北電さんに買って頂くシステムになっています。
正面からはこんな感じ♪ 夕方からは人感センサーで照明が付くようになっています。
玄関扉はこれです。
三協立川アルミ ラフォース ブロディ― デザイン P17(欄間なし)
カラー シャンパングレイ
玄関の鍵は電気錠になっています。 (後日に紹介します)
そして 以前にもご紹介したアイアン表札を付けて頂きました♪
照明が付くと 影が出来てとってもかっこよくなります♪
道路の方を振り返るとこんな感じです(*^_^*)
愛車は洗っていないので 汚いことには目をつぶってください (苦笑)
さて♪
玄関の扉を開けると 狭いんだけどエレベーターに続くエントランスがあります。
ここには 大きな写真や額などを飾れるように 間接照明を入れてもらった飾り壁を作りました。
右の方にはホームエレベーターがあります。
パナソニック製 1414ミディモダンE エクセルダーク柄
(写真では ちょっと赤っぽく写っちゃってます)
どうぞ♪ お入りください♪(*^_^*)
直通で 4Fまで上がって扉が開くと そこは我が家の玄関です。
上がり框は 曲線を描いて作ってもらいました。
左手には ウォークインシューズクローゼットがあり、 そこから家族は上がるようにします。
むこう側の壁には鏡を付けてもらって 狭いところに広がり感を出してます。
(撮影してる私が写ってますが 無視してください)(爆)
玄関もウォークインシューズクローットも人感センサーになっています。
ウォークインシューズクローゼットは 別の機会にご紹介しますね。
今日は長くなったので これくらいで・・・・
にほんブログ村
アクセス数
Profile
HN:
Nonnko
年齢:
68
性別:
女性
誕生日:
1957/08/17
趣味:
写真・ゴルフ・海水水槽
自己紹介:
札幌在住で写真を趣味にしている主婦です。
趣味が高じて たまにお仕事をさせてもらっています。
こちらのブログでは写真以外のことを主としてUPしています。
よろしくお願いします♪
趣味が高じて たまにお仕事をさせてもらっています。
こちらのブログでは写真以外のことを主としてUPしています。
よろしくお願いします♪
カレンダー
| 12 | 2026/01 | 02 |
| S | M | T | W | T | F | S |
|---|---|---|---|---|---|---|
| 1 | 2 | 3 | ||||
| 4 | 5 | 6 | 7 | 8 | 9 | 10 |
| 11 | 12 | 13 | 14 | 15 | 16 | 17 |
| 18 | 19 | 20 | 21 | 22 | 23 | 24 |
| 25 | 26 | 27 | 28 | 29 | 30 | 31 |
カテゴリー
最新記事
最新コメント
[09/10 Nonnko]
[09/10 Nonnko]
[09/10 たらふく]
[09/10 パインテール]
[09/07 Nonnko]
[08/27 Nonnko]
[08/26 たらふく]
[08/22 たらふく]
[08/13 Nonnko]
[08/12 とい]
海水魚関係LINK
ブログ内検索