― カフェオレ大好きの私がホッと一息つく Cafe Time・・・そんな日々の独り言を綴った日記です ―
(写真作品等はメインサイトの方からお入り下さい)
今日は青空が広がる冬の日となった札幌でした。
昨日の大荒れの天気で 太平洋側の室蘭やその他の地域では
大規模な停電になって大変なことになっています。
冬に電気が使えないと寒い北海道では本当に困ります。
寒い思いをなさっていらっしゃる方々の地方で 一時でも早く復旧しますように!
我が家と我が家の賃貸マンションはオール電化です。
共用部分には太陽光発電からの電気が行くので日中は消える事はないと思いますが
暖房まではまなかっていません。
今回の停電の事で ちょこっとだけオール電化にしたことを考えさせられました(汗)
でも・・・ そういう大惨事になる事は 本当に稀なことと思うのですが
非常用のものを揃えておくことも考えねばなりませんね。
さて♪
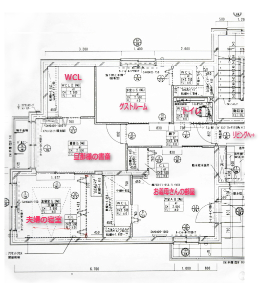
今日は 各部屋の入居前Web内覧会①ということで 設計図を見てください。

建物の一番左側に 旦那様が主に使う書斎とその奥に夫婦の寝室を作りました。
この場所は南西向きの一番日が当たる場所になっています。
でも 土地の形が こちらの方が狭くて こちら側にパブリックスベースを持ってくることが出来ませんでした。
なので 逆転の発想で 広い北東にリビング・ダイニングなどを持っていき、
中庭(コート)を作って光を入れるという考え方をしたのでした。
っで この書斎部分の窓は掃出し窓の大きなものにし、廊下を開けると
光と風がリビングに向かって行くという構想です(*^_^*)
廊下部分は 私の歩数で7歩程度と短い(狭い)のですよ(笑)
書斎からリビングに続く廊下です。


各部屋はディープウォールナットのフローリング仕上げですが
リビング・ダイニングと廊下部分等は 東リのロイヤルストーンを貼って頂きました。
大理石調(あくまでも調です)の床材で 白っぽいのはPST210
アクセントでラインとして使ってるこげ茶のは PST229です。
この組み合わせ とても綺麗なんです(*^_^*)

上の写真は 寝室の方から見た書斎です。 ここ・・・狭いんです(汗)
旦那様には申し訳ないけれど これしか取れませんでした<(_ _)>
そして引き戸で仕切れるようになっている主寝室です。

ここも実は狭いです(汗) デラックスダブルベッドを使っている私達のベッドヘッドが
ちょうど煉瓦状の壁紙と同じくらいなんです。
ここはベッドとベッドサイドの小さなテーブルしか置かないつもりです。
ってか。。。 それしか置けません(^◇^;)
っで それだけじゃつまらないので アクセントウォールでデコレーションしたわけです。
こんな感じ♪ 照明にはコントルクスを付けて頂き、調光出来るようになっています。

昨日の大荒れの天気で 太平洋側の室蘭やその他の地域では
大規模な停電になって大変なことになっています。
冬に電気が使えないと寒い北海道では本当に困ります。
寒い思いをなさっていらっしゃる方々の地方で 一時でも早く復旧しますように!
我が家と我が家の賃貸マンションはオール電化です。
共用部分には太陽光発電からの電気が行くので日中は消える事はないと思いますが
暖房まではまなかっていません。
今回の停電の事で ちょこっとだけオール電化にしたことを考えさせられました(汗)
でも・・・ そういう大惨事になる事は 本当に稀なことと思うのですが
非常用のものを揃えておくことも考えねばなりませんね。
さて♪
今日は 各部屋の入居前Web内覧会①ということで 設計図を見てください。
建物の一番左側に 旦那様が主に使う書斎とその奥に夫婦の寝室を作りました。
この場所は南西向きの一番日が当たる場所になっています。
でも 土地の形が こちらの方が狭くて こちら側にパブリックスベースを持ってくることが出来ませんでした。
なので 逆転の発想で 広い北東にリビング・ダイニングなどを持っていき、
中庭(コート)を作って光を入れるという考え方をしたのでした。
っで この書斎部分の窓は掃出し窓の大きなものにし、廊下を開けると
光と風がリビングに向かって行くという構想です(*^_^*)
廊下部分は 私の歩数で7歩程度と短い(狭い)のですよ(笑)
書斎からリビングに続く廊下です。
各部屋はディープウォールナットのフローリング仕上げですが
リビング・ダイニングと廊下部分等は 東リのロイヤルストーンを貼って頂きました。
大理石調(あくまでも調です)の床材で 白っぽいのはPST210
アクセントでラインとして使ってるこげ茶のは PST229です。
この組み合わせ とても綺麗なんです(*^_^*)
上の写真は 寝室の方から見た書斎です。 ここ・・・狭いんです(汗)
旦那様には申し訳ないけれど これしか取れませんでした<(_ _)>
そして引き戸で仕切れるようになっている主寝室です。
ここも実は狭いです(汗) デラックスダブルベッドを使っている私達のベッドヘッドが
ちょうど煉瓦状の壁紙と同じくらいなんです。
ここはベッドとベッドサイドの小さなテーブルしか置かないつもりです。
ってか。。。 それしか置けません(^◇^;)
っで それだけじゃつまらないので アクセントウォールでデコレーションしたわけです。
こんな感じ♪ 照明にはコントルクスを付けて頂き、調光出来るようになっています。
2種類の壁紙を使い、その間に見切りの金具を入れてもらっています。
ライトは四角いものを2対ずつつけてもらいました。
その横のは普段使いの洋服を入れておくタンスや棚をを仕舞えるクローゼットがあります。


夜はこんな感じになります。


クローゼットの中にも照明を入れてもらいました。
勿論 書斎につけてあるウォークインクローゼットの中も照明があり、そこはかなり広いスペースを取りました。
なるべく物を外に出さないという事にし 仕舞ってしまえばスッキリ!を目指しています。

ベランダを付けた掃出し窓です。お布団も干せるように物干しをつけてあります。
今日は 長くなったのでこの辺で・・・・<(_ _)>

にほんブログ村
ライトは四角いものを2対ずつつけてもらいました。
その横のは普段使いの洋服を入れておくタンスや棚をを仕舞えるクローゼットがあります。
夜はこんな感じになります。
クローゼットの中にも照明を入れてもらいました。
勿論 書斎につけてあるウォークインクローゼットの中も照明があり、そこはかなり広いスペースを取りました。
なるべく物を外に出さないという事にし 仕舞ってしまえばスッキリ!を目指しています。
ベランダを付けた掃出し窓です。お布団も干せるように物干しをつけてあります。
今日は 長くなったのでこの辺で・・・・<(_ _)>
にほんブログ村
PR
Comment
コメントの修正にはpasswordが必要です。任意の英数字を入力して下さい。
>ひでさん
おはようございます♪
こういう床材を使うとホテルみたいに見えちゃいますね(*^_^*)
白っぽい床材を使うと 光が反射して部屋の中が明るくて気持ちいいですね♪
寝室は本当に狭いの(汗)
ベッドを置くだけ、寝るだけのスペースとしてしか考えてないので
せめて照明だけは雰囲気を優先しました(笑)
こういう床材を使うとホテルみたいに見えちゃいますね(*^_^*)
白っぽい床材を使うと 光が反射して部屋の中が明るくて気持ちいいですね♪
寝室は本当に狭いの(汗)
ベッドを置くだけ、寝るだけのスペースとしてしか考えてないので
せめて照明だけは雰囲気を優先しました(笑)
アクセス数
Profile
HN:
Nonnko
年齢:
68
性別:
女性
誕生日:
1957/08/17
趣味:
写真・ゴルフ・海水水槽
自己紹介:
札幌在住で写真を趣味にしている主婦です。
趣味が高じて たまにお仕事をさせてもらっています。
こちらのブログでは写真以外のことを主としてUPしています。
よろしくお願いします♪
趣味が高じて たまにお仕事をさせてもらっています。
こちらのブログでは写真以外のことを主としてUPしています。
よろしくお願いします♪
カレンダー
| 12 | 2026/01 | 02 |
| S | M | T | W | T | F | S |
|---|---|---|---|---|---|---|
| 1 | 2 | 3 | ||||
| 4 | 5 | 6 | 7 | 8 | 9 | 10 |
| 11 | 12 | 13 | 14 | 15 | 16 | 17 |
| 18 | 19 | 20 | 21 | 22 | 23 | 24 |
| 25 | 26 | 27 | 28 | 29 | 30 | 31 |
カテゴリー
最新記事
最新コメント
[09/10 Nonnko]
[09/10 Nonnko]
[09/10 たらふく]
[09/10 パインテール]
[09/07 Nonnko]
[08/27 Nonnko]
[08/26 たらふく]
[08/22 たらふく]
[08/13 Nonnko]
[08/12 とい]
海水魚関係LINK
ブログ内検索