― カフェオレ大好きの私がホッと一息つく Cafe Time・・・そんな日々の独り言を綴った日記です ―
(写真作品等はメインサイトの方からお入り下さい)
更新がちょっと滞っておりました(汗)
その間に札幌も雨が少し続き、工事が一日中断する日もあったりして。。。
当初の計画よりも 最初から2週間遅くなってるので さらに遅れるかな?(汗)
そんな中ですが 基礎コンが流された後に型枠が外れまして
今は建物の周りに70センチの盛り土をするためにブロックが積まれて
埋戻しをしております♪

周りに土を入れてるところです。

ご近所さんの家が丸見えなので 目隠しさせていただきました。
基礎周りが終わり 来週からはいよいよ1F部分に取り掛かるのでしょうかね♪
お天気が続くことを祈ります!!
さて・・・・
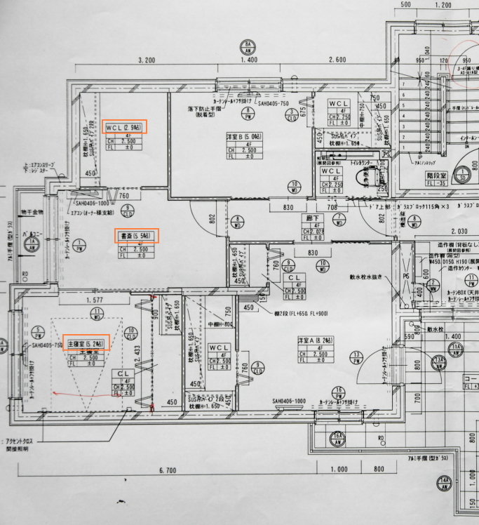
今日は プライベートルームというべき夫婦の部屋の設計図を♪

設計図の右側(道路側の方になります)がパブリックスペースのLDKなどがあり
中庭のコートを挟んで左側が個々の部屋のプライベートスペースになります。
コートが見える位置の部屋(洋室A)がお義母さんの部屋。トイレにもすぐ行けます。
トイレの隣の部屋(洋室B)はゲストルーム。 まぁたまに帰って来る長男が主に使うかも?
そして建物の端っこを私たち夫婦が使う部屋としました。
廊下からのドアを開けてすぐの部屋は 旦那様の書斎 兼 夫婦の部屋(狭いけど)
本当なら この部屋で夫婦二人のPCを並べて色んな作業をしたかったのですが
あまりにも狭すぎて無理!!なので
苦肉の策で リビングの端っこに私のPC作業場を作ったのでした(^◇^;)
そこから奥(設計図では下の方)に 寝室を設けました。
上の方はウォークインクローゼットになっています。
狭いです・・・(^◇^;) なので物があまり置けません。
なるべく機能的に家具を配置しなきゃなりません。
でも 収納部分は考えに考えて作ったので 何とか収まるでしょう。
寝室部分の展開図はこんな感じになります。

書斎から見える位置からの壁には ベッドの左右にアクセントクロスを貼ります。
私の夢の妄想の中では ここには細いスラッシュ窓を左右に~♪ なんて思ってたけど
あえなく 減額の対象になったのでした。
なので せめて凝った感じにしたかったので アクセントクロスを利用します。
でも ただのアクセントじゃ面白くないから こんな風に貼り分けることにしたのです。
照明は 上下に2個ずつ 合計4個の間接照明を付けます。
ベッドはクイーンサイズのデッカイものなので 本当に部屋にはベッドだけ!
っつう感じになっちゃうけど(苦笑)
まぁ ここは寝るだけの部屋と割り切ってるのでね(*^_^*)
書斎との仕切りは 引き戸を2枚用いて 普段は開けておきます。
書斎自体も狭いから 少しでも広く見えるようにってね(笑)
旦那様が遅くまでPCをやったりTVを見ていたりしても 私は引き戸を閉めてしまえば眠れます。
書斎には 掃出し窓をつけてもらい 小さいけれどベランダがあります。
お布団など すぐに干せるように物干しも付けちゃいました。
この窓を開け、廊下に通じるドアを開け放てば一直線にLDKまで風の通り道が出来るはず♪
以上 夫婦の部屋でございました♪

にほんブログ村
その間に札幌も雨が少し続き、工事が一日中断する日もあったりして。。。
当初の計画よりも 最初から2週間遅くなってるので さらに遅れるかな?(汗)
そんな中ですが 基礎コンが流された後に型枠が外れまして
今は建物の周りに70センチの盛り土をするためにブロックが積まれて
埋戻しをしております♪
周りに土を入れてるところです。
ご近所さんの家が丸見えなので 目隠しさせていただきました。
基礎周りが終わり 来週からはいよいよ1F部分に取り掛かるのでしょうかね♪
お天気が続くことを祈ります!!
さて・・・・
今日は プライベートルームというべき夫婦の部屋の設計図を♪
設計図の右側(道路側の方になります)がパブリックスペースのLDKなどがあり
中庭のコートを挟んで左側が個々の部屋のプライベートスペースになります。
コートが見える位置の部屋(洋室A)がお義母さんの部屋。トイレにもすぐ行けます。
トイレの隣の部屋(洋室B)はゲストルーム。 まぁたまに帰って来る長男が主に使うかも?
そして建物の端っこを私たち夫婦が使う部屋としました。
廊下からのドアを開けてすぐの部屋は 旦那様の書斎 兼 夫婦の部屋(狭いけど)
本当なら この部屋で夫婦二人のPCを並べて色んな作業をしたかったのですが
あまりにも狭すぎて無理!!なので
苦肉の策で リビングの端っこに私のPC作業場を作ったのでした(^◇^;)
そこから奥(設計図では下の方)に 寝室を設けました。
上の方はウォークインクローゼットになっています。
狭いです・・・(^◇^;) なので物があまり置けません。
なるべく機能的に家具を配置しなきゃなりません。
でも 収納部分は考えに考えて作ったので 何とか収まるでしょう。
寝室部分の展開図はこんな感じになります。
書斎から見える位置からの壁には ベッドの左右にアクセントクロスを貼ります。
私の夢の妄想の中では ここには細いスラッシュ窓を左右に~♪ なんて思ってたけど
あえなく 減額の対象になったのでした。
なので せめて凝った感じにしたかったので アクセントクロスを利用します。
でも ただのアクセントじゃ面白くないから こんな風に貼り分けることにしたのです。
照明は 上下に2個ずつ 合計4個の間接照明を付けます。
ベッドはクイーンサイズのデッカイものなので 本当に部屋にはベッドだけ!
っつう感じになっちゃうけど(苦笑)
まぁ ここは寝るだけの部屋と割り切ってるのでね(*^_^*)
書斎との仕切りは 引き戸を2枚用いて 普段は開けておきます。
書斎自体も狭いから 少しでも広く見えるようにってね(笑)
旦那様が遅くまでPCをやったりTVを見ていたりしても 私は引き戸を閉めてしまえば眠れます。
書斎には 掃出し窓をつけてもらい 小さいけれどベランダがあります。
お布団など すぐに干せるように物干しも付けちゃいました。
この窓を開け、廊下に通じるドアを開け放てば一直線にLDKまで風の通り道が出来るはず♪
以上 夫婦の部屋でございました♪
にほんブログ村
PR
アクセス数
Profile
HN:
Nonnko
年齢:
68
性別:
女性
誕生日:
1957/08/17
趣味:
写真・ゴルフ・海水水槽
自己紹介:
札幌在住で写真を趣味にしている主婦です。
趣味が高じて たまにお仕事をさせてもらっています。
こちらのブログでは写真以外のことを主としてUPしています。
よろしくお願いします♪
趣味が高じて たまにお仕事をさせてもらっています。
こちらのブログでは写真以外のことを主としてUPしています。
よろしくお願いします♪
カレンダー
| 12 | 2026/01 | 02 |
| S | M | T | W | T | F | S |
|---|---|---|---|---|---|---|
| 1 | 2 | 3 | ||||
| 4 | 5 | 6 | 7 | 8 | 9 | 10 |
| 11 | 12 | 13 | 14 | 15 | 16 | 17 |
| 18 | 19 | 20 | 21 | 22 | 23 | 24 |
| 25 | 26 | 27 | 28 | 29 | 30 | 31 |
カテゴリー
最新記事
最新コメント
[09/10 Nonnko]
[09/10 Nonnko]
[09/10 たらふく]
[09/10 パインテール]
[09/07 Nonnko]
[08/27 Nonnko]
[08/26 たらふく]
[08/22 たらふく]
[08/13 Nonnko]
[08/12 とい]
海水魚関係LINK
ブログ内検索