― カフェオレ大好きの私がホッと一息つく Cafe Time・・・そんな日々の独り言を綴った日記です ―
(写真作品等はメインサイトの方からお入り下さい)
ちょっと更新間隔が空いてしまいましたね(汗)
皆様 暑い夏を乗り切っておられるでしょうか?
『北海道=涼しい夏』 という方程式が見事に覆ってる感のある札幌です。
昨日あたりから少し涼しくなりましたが 連日の猛暑は関東と同じくらい!
部屋の中は平気で30度を超えていましたぁ!!
エアコンを付けてないので扇風機で凌いでいますが
暑さと湿度に弱い北海道人には 辛い日々でございました・・・・
さて・・・・ 今日のお題はキッチンでございます。
以前載せさせていただいた過去記事は こちらです。
パナソニックのショールーム (4月7日 掲載)
再びパナソニックへ (4月14日 掲載)

毎度使いまわしの設計図ですが・・・(^◇^;)
キッチン部分は こんな配置になっています。

↑
ダイニング方向から見た図です。 手書きでぐちゃぐちゃ書いてあるところに
レンガ調のエコカラットを貼って頂きます。

↑
キッチンからダイニング方向を見た図です。
扉部分は 白っぽいものにしました。 最初は全て『ゼブラ柄』(写真の濃い茶色)に
したかったのですが 予算の関係上 事業仕訳されちゃいました(笑)
カウンタートップは 人造大理石でシンク内はステンレスを選択しました。
カウンターは ダイニング側に少し伸ばしてもらい、カウンターバーにしてあります。
以前の日記を読んで下さった方は判ると思いますが
本当は 今 流行りの完全オープンキッチンにしたかったです・・・
でも 下から上がってくる電動昇降水切りが廃盤になってしまったので
頭を切り替えて この仕様にしたのでした。
上の棚は 上から降りてくる『電動昇降水切り』と『電動昇降物入れ』が
二つ並んでいます。

IHクッキングヒーターは パナ独自のトリプルワイドです。
実は これを決めた後、6月中旬に新しいものが発売になりました(汗)
色々迷った挙句、 7月中旬になってから一度決めたLクラスのものを
新しく出たNewLクラスに変更出来ないか?と我儘なお願いをした私!
新しく発売になったトリプルワイドは 火力がUPされています。
銀色の通常タイプでは 今まで下半分だけが『光るリング』付きだったのが
全周グルッと光るタイプに変わっていました。
でも それは数万円UPになっちゃう・・・
それと同時に 黒タイプも発売になり、 こちらは同じく火力UPしてますが
光るリングは省かれています。
私はこちらを選択しました。 光るリングは要らないし その分お安くなってます(笑)

っで、値段は 旧タイプのものよりも少し下がるんですが NewLクラスになるので
これに付随する下の引き出し部分が値段UPとなるので 差し引きしても 4万円くらいUPになっちゃいました(汗)
でも 何とかしてくださるそうで 現場監督様!ありがとうございます!!
新しく発売されたものが旧タイプよりも悪いわけはないですし
引き出し部分も 旧タイプより格段に使いやすくなっています。
思い切ってお願いして良かった!!(*^_^*)
そして 背面側の収納部分はこんな感じになっています。

左から 冷蔵庫スペース・電化製品スペース・アクティブウォール(引き戸の収納スペース)
アクティブウォールは 一目惚れした私です。

収納部分には こんなものが付いていて・・・・

左側は回転する網かご これはナノイ―を使った根菜キーパー
中が見えないように不透明な扉にしてもらい、 すっきりと全て隠す事にしています。
実は LクラスからNewLクラスに変更したことで こげ茶色のゼブラ柄は
使用できなくなりました。(新しいクラスではゼブラ柄は廃盤らしいです)
なので 似たようなものに変更してもらったので 色目が少し変わるようです。
でも 思い通りの仕様になったので 大満足!!
早く このキッチンでお料理をしたいわぁ~~~♪

にほんブログ村
皆様 暑い夏を乗り切っておられるでしょうか?
『北海道=涼しい夏』 という方程式が見事に覆ってる感のある札幌です。
昨日あたりから少し涼しくなりましたが 連日の猛暑は関東と同じくらい!
部屋の中は平気で30度を超えていましたぁ!!
エアコンを付けてないので扇風機で凌いでいますが
暑さと湿度に弱い北海道人には 辛い日々でございました・・・・
さて・・・・ 今日のお題はキッチンでございます。
以前載せさせていただいた過去記事は こちらです。
パナソニックのショールーム (4月7日 掲載)
再びパナソニックへ (4月14日 掲載)
毎度使いまわしの設計図ですが・・・(^◇^;)
キッチン部分は こんな配置になっています。
↑
ダイニング方向から見た図です。 手書きでぐちゃぐちゃ書いてあるところに
レンガ調のエコカラットを貼って頂きます。
↑
キッチンからダイニング方向を見た図です。
扉部分は 白っぽいものにしました。 最初は全て『ゼブラ柄』(写真の濃い茶色)に
したかったのですが 予算の関係上 事業仕訳されちゃいました(笑)
カウンタートップは 人造大理石でシンク内はステンレスを選択しました。
カウンターは ダイニング側に少し伸ばしてもらい、カウンターバーにしてあります。
以前の日記を読んで下さった方は判ると思いますが
本当は 今 流行りの完全オープンキッチンにしたかったです・・・
でも 下から上がってくる電動昇降水切りが廃盤になってしまったので
頭を切り替えて この仕様にしたのでした。
上の棚は 上から降りてくる『電動昇降水切り』と『電動昇降物入れ』が
二つ並んでいます。
IHクッキングヒーターは パナ独自のトリプルワイドです。
実は これを決めた後、6月中旬に新しいものが発売になりました(汗)
色々迷った挙句、 7月中旬になってから一度決めたLクラスのものを
新しく出たNewLクラスに変更出来ないか?と我儘なお願いをした私!
新しく発売になったトリプルワイドは 火力がUPされています。
銀色の通常タイプでは 今まで下半分だけが『光るリング』付きだったのが
全周グルッと光るタイプに変わっていました。
でも それは数万円UPになっちゃう・・・
それと同時に 黒タイプも発売になり、 こちらは同じく火力UPしてますが
光るリングは省かれています。
私はこちらを選択しました。 光るリングは要らないし その分お安くなってます(笑)
っで、値段は 旧タイプのものよりも少し下がるんですが NewLクラスになるので
これに付随する下の引き出し部分が値段UPとなるので 差し引きしても 4万円くらいUPになっちゃいました(汗)
でも 何とかしてくださるそうで 現場監督様!ありがとうございます!!
新しく発売されたものが旧タイプよりも悪いわけはないですし
引き出し部分も 旧タイプより格段に使いやすくなっています。
思い切ってお願いして良かった!!(*^_^*)
そして 背面側の収納部分はこんな感じになっています。
左から 冷蔵庫スペース・電化製品スペース・アクティブウォール(引き戸の収納スペース)
アクティブウォールは 一目惚れした私です。
収納部分には こんなものが付いていて・・・・
左側は回転する網かご これはナノイ―を使った根菜キーパー
中が見えないように不透明な扉にしてもらい、 すっきりと全て隠す事にしています。
実は LクラスからNewLクラスに変更したことで こげ茶色のゼブラ柄は
使用できなくなりました。(新しいクラスではゼブラ柄は廃盤らしいです)
なので 似たようなものに変更してもらったので 色目が少し変わるようです。
でも 思い通りの仕様になったので 大満足!!
早く このキッチンでお料理をしたいわぁ~~~♪
にほんブログ村
PR
7月17日から19日まで 実家の新潟県柏崎市に帰省してきました。
新千歳-新潟間のJALの直行便が7月13日から再開されるとのことだったので
2か月前に予約を入れておいての帰省でした。
その時は まさかこの時期に母が体調を崩して寝込んでしまうとは夢にも思わず・・・
幸か不幸か そのさなかに帰省するという事になり 2泊3日の短い期間でしたが
実家の手伝いを少しでもできた事は良かったと思います。
でも・・・・ 父も高齢。 母の認知症も思ったより進んでいて世話をしてる父も
この暑さでへばり気味・・・
母が入院したいというので 1週間の入院の間に 少しは父も楽になってくれると良いのですが。
80歳を過ぎた両親のことを思うと 遠くにお嫁に出た私は
何もしてあげられないような気持ちになって 胸が詰まります。
近くに居れば ちょこちょこと行って お世話出来るのに・・・
今のこういう状態なら 遠い近いは関係なく、時間が出来たらなるべく行ってあげようと思います。
札幌の家でも 義母の事もあるし 滞在期間は短くせざるを得ませんが
それでも私に出来る事は精一杯してあげたいと思います。
さて・・・・
新築の家の方ですが
2泊3日で帰ってきたら こんな風になってました!


実家に滞在している間に 足場が組まれ、1F部分の外断熱材が貼られています。
実は 実家に居る間、毎日旦那様が写メで携帯に写真を送ってくれていました(笑)
私が気にしているんだろうなと思っての事なんだろうけど
それを両親や弟たちに見せたりして 話のタネになって
笑顔が見れたことは嬉しかった♪
この家が11月中旬に無事に完成して引っ越した時には
母も元気になってくれてると嬉しいんだけどね。
ともかく今は この暑い夏を何とか乗り切ってほしいと思うだけです。

にほんブログ村
新千歳-新潟間のJALの直行便が7月13日から再開されるとのことだったので
2か月前に予約を入れておいての帰省でした。
その時は まさかこの時期に母が体調を崩して寝込んでしまうとは夢にも思わず・・・
幸か不幸か そのさなかに帰省するという事になり 2泊3日の短い期間でしたが
実家の手伝いを少しでもできた事は良かったと思います。
でも・・・・ 父も高齢。 母の認知症も思ったより進んでいて世話をしてる父も
この暑さでへばり気味・・・
母が入院したいというので 1週間の入院の間に 少しは父も楽になってくれると良いのですが。
80歳を過ぎた両親のことを思うと 遠くにお嫁に出た私は
何もしてあげられないような気持ちになって 胸が詰まります。
近くに居れば ちょこちょこと行って お世話出来るのに・・・
今のこういう状態なら 遠い近いは関係なく、時間が出来たらなるべく行ってあげようと思います。
札幌の家でも 義母の事もあるし 滞在期間は短くせざるを得ませんが
それでも私に出来る事は精一杯してあげたいと思います。
さて・・・・
新築の家の方ですが
2泊3日で帰ってきたら こんな風になってました!
実家に滞在している間に 足場が組まれ、1F部分の外断熱材が貼られています。
実は 実家に居る間、毎日旦那様が写メで携帯に写真を送ってくれていました(笑)
私が気にしているんだろうなと思っての事なんだろうけど
それを両親や弟たちに見せたりして 話のタネになって
笑顔が見れたことは嬉しかった♪
この家が11月中旬に無事に完成して引っ越した時には
母も元気になってくれてると嬉しいんだけどね。
ともかく今は この暑い夏を何とか乗り切ってほしいと思うだけです。
にほんブログ村
更新がちょっと滞っておりました(汗)
その間に札幌も雨が少し続き、工事が一日中断する日もあったりして。。。
当初の計画よりも 最初から2週間遅くなってるので さらに遅れるかな?(汗)
そんな中ですが 基礎コンが流された後に型枠が外れまして
今は建物の周りに70センチの盛り土をするためにブロックが積まれて
埋戻しをしております♪

周りに土を入れてるところです。

ご近所さんの家が丸見えなので 目隠しさせていただきました。
基礎周りが終わり 来週からはいよいよ1F部分に取り掛かるのでしょうかね♪
お天気が続くことを祈ります!!
さて・・・・
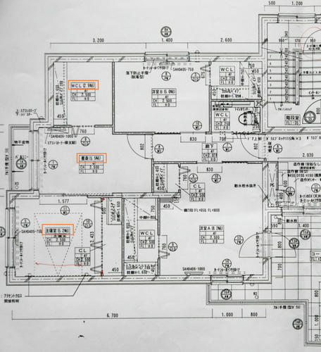
今日は プライベートルームというべき夫婦の部屋の設計図を♪

設計図の右側(道路側の方になります)がパブリックスペースのLDKなどがあり
中庭のコートを挟んで左側が個々の部屋のプライベートスペースになります。
コートが見える位置の部屋(洋室A)がお義母さんの部屋。トイレにもすぐ行けます。
トイレの隣の部屋(洋室B)はゲストルーム。 まぁたまに帰って来る長男が主に使うかも?
そして建物の端っこを私たち夫婦が使う部屋としました。
廊下からのドアを開けてすぐの部屋は 旦那様の書斎 兼 夫婦の部屋(狭いけど)
本当なら この部屋で夫婦二人のPCを並べて色んな作業をしたかったのですが
あまりにも狭すぎて無理!!なので
苦肉の策で リビングの端っこに私のPC作業場を作ったのでした(^◇^;)
そこから奥(設計図では下の方)に 寝室を設けました。
上の方はウォークインクローゼットになっています。
狭いです・・・(^◇^;) なので物があまり置けません。
なるべく機能的に家具を配置しなきゃなりません。
でも 収納部分は考えに考えて作ったので 何とか収まるでしょう。
寝室部分の展開図はこんな感じになります。

書斎から見える位置からの壁には ベッドの左右にアクセントクロスを貼ります。
私の夢の妄想の中では ここには細いスラッシュ窓を左右に~♪ なんて思ってたけど
あえなく 減額の対象になったのでした。
なので せめて凝った感じにしたかったので アクセントクロスを利用します。
でも ただのアクセントじゃ面白くないから こんな風に貼り分けることにしたのです。
照明は 上下に2個ずつ 合計4個の間接照明を付けます。
ベッドはクイーンサイズのデッカイものなので 本当に部屋にはベッドだけ!
っつう感じになっちゃうけど(苦笑)
まぁ ここは寝るだけの部屋と割り切ってるのでね(*^_^*)
書斎との仕切りは 引き戸を2枚用いて 普段は開けておきます。
書斎自体も狭いから 少しでも広く見えるようにってね(笑)
旦那様が遅くまでPCをやったりTVを見ていたりしても 私は引き戸を閉めてしまえば眠れます。
書斎には 掃出し窓をつけてもらい 小さいけれどベランダがあります。
お布団など すぐに干せるように物干しも付けちゃいました。
この窓を開け、廊下に通じるドアを開け放てば一直線にLDKまで風の通り道が出来るはず♪
以上 夫婦の部屋でございました♪

にほんブログ村
その間に札幌も雨が少し続き、工事が一日中断する日もあったりして。。。
当初の計画よりも 最初から2週間遅くなってるので さらに遅れるかな?(汗)
そんな中ですが 基礎コンが流された後に型枠が外れまして
今は建物の周りに70センチの盛り土をするためにブロックが積まれて
埋戻しをしております♪
周りに土を入れてるところです。
ご近所さんの家が丸見えなので 目隠しさせていただきました。
基礎周りが終わり 来週からはいよいよ1F部分に取り掛かるのでしょうかね♪
お天気が続くことを祈ります!!
さて・・・・
今日は プライベートルームというべき夫婦の部屋の設計図を♪
設計図の右側(道路側の方になります)がパブリックスペースのLDKなどがあり
中庭のコートを挟んで左側が個々の部屋のプライベートスペースになります。
コートが見える位置の部屋(洋室A)がお義母さんの部屋。トイレにもすぐ行けます。
トイレの隣の部屋(洋室B)はゲストルーム。 まぁたまに帰って来る長男が主に使うかも?
そして建物の端っこを私たち夫婦が使う部屋としました。
廊下からのドアを開けてすぐの部屋は 旦那様の書斎 兼 夫婦の部屋(狭いけど)
本当なら この部屋で夫婦二人のPCを並べて色んな作業をしたかったのですが
あまりにも狭すぎて無理!!なので
苦肉の策で リビングの端っこに私のPC作業場を作ったのでした(^◇^;)
そこから奥(設計図では下の方)に 寝室を設けました。
上の方はウォークインクローゼットになっています。
狭いです・・・(^◇^;) なので物があまり置けません。
なるべく機能的に家具を配置しなきゃなりません。
でも 収納部分は考えに考えて作ったので 何とか収まるでしょう。
寝室部分の展開図はこんな感じになります。
書斎から見える位置からの壁には ベッドの左右にアクセントクロスを貼ります。
私の夢の妄想の中では ここには細いスラッシュ窓を左右に~♪ なんて思ってたけど
あえなく 減額の対象になったのでした。
なので せめて凝った感じにしたかったので アクセントクロスを利用します。
でも ただのアクセントじゃ面白くないから こんな風に貼り分けることにしたのです。
照明は 上下に2個ずつ 合計4個の間接照明を付けます。
ベッドはクイーンサイズのデッカイものなので 本当に部屋にはベッドだけ!
っつう感じになっちゃうけど(苦笑)
まぁ ここは寝るだけの部屋と割り切ってるのでね(*^_^*)
書斎との仕切りは 引き戸を2枚用いて 普段は開けておきます。
書斎自体も狭いから 少しでも広く見えるようにってね(笑)
旦那様が遅くまでPCをやったりTVを見ていたりしても 私は引き戸を閉めてしまえば眠れます。
書斎には 掃出し窓をつけてもらい 小さいけれどベランダがあります。
お布団など すぐに干せるように物干しも付けちゃいました。
この窓を開け、廊下に通じるドアを開け放てば一直線にLDKまで風の通り道が出来るはず♪
以上 夫婦の部屋でございました♪
にほんブログ村
7月に入りましたね♪ 札幌は6月の末からめちゃくちゃ暑い日が続いています(汗)
本州よりも暑い日があるって どーいうことよ?!って感じです(-"-;)
でも梅雨のように湿度があってジメジメはしていないというのだけは救いでしょうか。
さて・・・
ほぼ毎日 仮住まいのマンションの踊り場から定点観測のように写真を撮ってるブログ主です(笑)
以前の定点観測(笑)の写真の翌日からご紹介いたします。
↓ 6月24日 1階の床を作るために基礎配筋の上に型枠建込みをしていました。


↓ 7月1日撮影 その上に 数日掛けてスラブ配筋を細かく丁寧に施して・・・・

美しいと思えるほどの鉄筋の並び方です(笑)


そして 周りを止め枠で囲い終わったのが昨日でした。
そんでもって!! 今日7月3日♪
その上から基礎コンクリートが流されましたぁ!!



今日も札幌は28度と暑い中、炎天下にさらされながらも丁寧な仕事をして下さって
本当にありがたいです<(_ _)>
基礎コンクリートの表面は とても滑らかに整えられておりました♪
お天気もずっと続くようだし コンクリートの養生も楽だと思います。
明日は一日養生すると思うので お仕事は無しかな?

にほんブログ村
本州よりも暑い日があるって どーいうことよ?!って感じです(-"-;)
でも梅雨のように湿度があってジメジメはしていないというのだけは救いでしょうか。
さて・・・
ほぼ毎日 仮住まいのマンションの踊り場から定点観測のように写真を撮ってるブログ主です(笑)
以前の定点観測(笑)の写真の翌日からご紹介いたします。
↓ 6月24日 1階の床を作るために基礎配筋の上に型枠建込みをしていました。
↓ 7月1日撮影 その上に 数日掛けてスラブ配筋を細かく丁寧に施して・・・・
美しいと思えるほどの鉄筋の並び方です(笑)
そして 周りを止め枠で囲い終わったのが昨日でした。
そんでもって!! 今日7月3日♪
その上から基礎コンクリートが流されましたぁ!!
今日も札幌は28度と暑い中、炎天下にさらされながらも丁寧な仕事をして下さって
本当にありがたいです<(_ _)>
基礎コンクリートの表面は とても滑らかに整えられておりました♪
お天気もずっと続くようだし コンクリートの養生も楽だと思います。
明日は一日養生すると思うので お仕事は無しかな?
にほんブログ村
昨日から真夏のような暑さになってる札幌です(汗)
今日も30度に手が届きそう・・・
来週から7月とはいえ 暑くなるにはちと早いんでないかい??
さて 今日はトイレの仕様でございます。
TOTOさん INAXさんなど色々検討しましたが
ここでも自宅部分はパナソニックさんを選択~♪
何故って設備を統一した方が値引き率が良いから?(笑)
ちなみに賃貸部分のトイレはTOTOさんでございます。
パナソニックといえばアラウーノですよね♪ アラウーノとアラウーノSがあります。

詳しくはこちらをクリック♪ → アラウーノ
ショールームのおトイレを拝借した時にアラウーノを初体感してみました。
機能は素晴らしい!! しっかりお掃除までしてくれるし♪
でも・・・形がどうも気に入りません(汗)
奥の方まで深く座れば違和感はないのですけど 慣れたら良いのかな?
でも見た目のぽってり感っていうのがどうもね・・・
保留にしようと思っていたら 新発売でアラウーノVというのが出たとの事!

詳しくはこちら♪ → アラウーノV
洗剤の泡で自動的にお掃除をする機能はありませんが
節水しながら綺麗に洗浄してくれるそうです。
何よりも あのぽってりした形じゃない♪(*^_^*)
そして お値段もリーズナブルだし中々良さげです。
タンクレス希望なんですが 我が家は4Fになるのでちょっと微妙・・・
ただ このアラウーノVならマンションなどの上階でも
タンクレスを設置できるようなので それに期待しています。
今まで手洗いはタンクの上についてる一般的なものでした。
私は どーもその仕様があまり好きじゃなかった・・・
出来るならトイレはタンクレス(タンクレスじゃなくても蓋をして手洗いは別)に
してほしいのです。
っで その手洗いは出来るなら造作にしてもらって
こういうのが希望でした。

でもね・・・・(汗)
キッチンとお風呂などにかなりお金をかけたので
あえなく 減額仕分け項目に・・・・・(-"-;)
っで 手洗いカウンターは こんな感じになります。(鏡は付けません)
うう・・・・ 何のひねりもない普通な感じ (^◇^;)

(パナソニックのHPからお借りしました)
我が家のトイレには窓がありません。

場所は リビングから廊下に出て すぐ右側にあります。
コートに面した洋室Aは お義母さんの部屋で トイレにすぐ行けるようにとここにしました。
洋室B(ゲストルーム)の部屋のWICとの取り合いで 窓が無い状態になっています。
なので 引き戸の上にガラスブロックを3つほど並べてもらいました。
まぁ これで明るくはならないと思うけど 気分的なものです(笑)
ここにガラスブロックがはめ込まれていたら 電気の消し忘れも一発で判る!(爆)
照明だけは 普通のダウンライトにはしたくなくて こういう風にしようと思います。

ちょっと図面だと判りづらいですかね?
壁に 蛍光灯の照明を付けてもらい それを造作のコの字型のカバーで覆ってもらい
光が上下にだけ行くようにしてもらいます。
以前 どなたかの新築ブログで このような仕様にされていらっしゃるをみて
素敵だなぁって思ったものですから 思い切ってやってみました♪
後は 出来上がってから ちょっと細工をしようと思っています。
これは お引っ越しが終わってからご紹介することになると思います(*^_^*)
いよいよ夏到来??の7月に入りますね。
梅雨シーズンの地方の方々 もう少しご辛抱くださいませ。

にほんブログ村
今日も30度に手が届きそう・・・
来週から7月とはいえ 暑くなるにはちと早いんでないかい??
さて 今日はトイレの仕様でございます。
TOTOさん INAXさんなど色々検討しましたが
ここでも自宅部分はパナソニックさんを選択~♪
何故って設備を統一した方が値引き率が良いから?(笑)
ちなみに賃貸部分のトイレはTOTOさんでございます。
パナソニックといえばアラウーノですよね♪ アラウーノとアラウーノSがあります。
詳しくはこちらをクリック♪ → アラウーノ
ショールームのおトイレを拝借した時にアラウーノを初体感してみました。
機能は素晴らしい!! しっかりお掃除までしてくれるし♪
でも・・・形がどうも気に入りません(汗)
奥の方まで深く座れば違和感はないのですけど 慣れたら良いのかな?
でも見た目のぽってり感っていうのがどうもね・・・
保留にしようと思っていたら 新発売でアラウーノVというのが出たとの事!
詳しくはこちら♪ → アラウーノV
洗剤の泡で自動的にお掃除をする機能はありませんが
節水しながら綺麗に洗浄してくれるそうです。
何よりも あのぽってりした形じゃない♪(*^_^*)
そして お値段もリーズナブルだし中々良さげです。
タンクレス希望なんですが 我が家は4Fになるのでちょっと微妙・・・
ただ このアラウーノVならマンションなどの上階でも
タンクレスを設置できるようなので それに期待しています。
今まで手洗いはタンクの上についてる一般的なものでした。
私は どーもその仕様があまり好きじゃなかった・・・
出来るならトイレはタンクレス(タンクレスじゃなくても蓋をして手洗いは別)に
してほしいのです。
っで その手洗いは出来るなら造作にしてもらって
こういうのが希望でした。
でもね・・・・(汗)
キッチンとお風呂などにかなりお金をかけたので
あえなく 減額仕分け項目に・・・・・(-"-;)
っで 手洗いカウンターは こんな感じになります。(鏡は付けません)
うう・・・・ 何のひねりもない普通な感じ (^◇^;)
(パナソニックのHPからお借りしました)
我が家のトイレには窓がありません。
場所は リビングから廊下に出て すぐ右側にあります。
コートに面した洋室Aは お義母さんの部屋で トイレにすぐ行けるようにとここにしました。
洋室B(ゲストルーム)の部屋のWICとの取り合いで 窓が無い状態になっています。
なので 引き戸の上にガラスブロックを3つほど並べてもらいました。
まぁ これで明るくはならないと思うけど 気分的なものです(笑)
ここにガラスブロックがはめ込まれていたら 電気の消し忘れも一発で判る!(爆)
照明だけは 普通のダウンライトにはしたくなくて こういう風にしようと思います。
ちょっと図面だと判りづらいですかね?
壁に 蛍光灯の照明を付けてもらい それを造作のコの字型のカバーで覆ってもらい
光が上下にだけ行くようにしてもらいます。
以前 どなたかの新築ブログで このような仕様にされていらっしゃるをみて
素敵だなぁって思ったものですから 思い切ってやってみました♪
後は 出来上がってから ちょっと細工をしようと思っています。
これは お引っ越しが終わってからご紹介することになると思います(*^_^*)
いよいよ夏到来??の7月に入りますね。
梅雨シーズンの地方の方々 もう少しご辛抱くださいませ。
にほんブログ村
アクセス数
Profile
HN:
Nonnko
年齢:
68
性別:
女性
誕生日:
1957/08/17
趣味:
写真・ゴルフ・海水水槽
自己紹介:
札幌在住で写真を趣味にしている主婦です。
趣味が高じて たまにお仕事をさせてもらっています。
こちらのブログでは写真以外のことを主としてUPしています。
よろしくお願いします♪
趣味が高じて たまにお仕事をさせてもらっています。
こちらのブログでは写真以外のことを主としてUPしています。
よろしくお願いします♪
カレンダー
| 12 | 2026/01 | 02 |
| S | M | T | W | T | F | S |
|---|---|---|---|---|---|---|
| 1 | 2 | 3 | ||||
| 4 | 5 | 6 | 7 | 8 | 9 | 10 |
| 11 | 12 | 13 | 14 | 15 | 16 | 17 |
| 18 | 19 | 20 | 21 | 22 | 23 | 24 |
| 25 | 26 | 27 | 28 | 29 | 30 | 31 |
カテゴリー
最新記事
最新コメント
[09/10 Nonnko]
[09/10 Nonnko]
[09/10 たらふく]
[09/10 パインテール]
[09/07 Nonnko]
[08/27 Nonnko]
[08/26 たらふく]
[08/22 たらふく]
[08/13 Nonnko]
[08/12 とい]
海水魚関係LINK
ブログ内検索